Next Project

Heritage Restored: A municipal hall project based on research on wooden sacred architecture in the Upper Silesia-Zaglebia metropolis

Part 2 Project 2025
Robert Machura
Cracow University of Technology | Poland
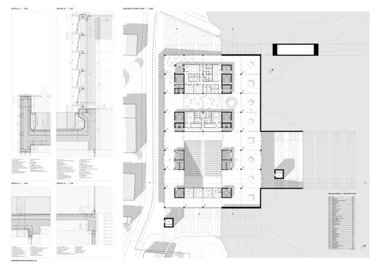
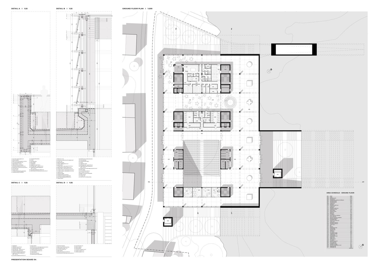
The main idea of this project was to fill the void left after the demolition of the historic wooden Church of St. Lawrence, which stood in Mikulczyce, a district of Zabrze, Poland, until 1901. This loss was not only physical but also emotional and symbolic. The church was an important landmark in the local landscape and social life. Its disappearance left a tangible gap within the community.

The project aims not only to physically close this void but also to restore social bonds and the symbolic value of the place. A key concept was referencing the historic wooden structure through the reinterpretation of its original architectural forms. Instead of reconstruction, a contemporary transformation of the former church’s volumes and spatial arrangement was proposed, where the tower, nave, and chancel become modern architectural forms.

The new Municipal Hall is not merely an aesthetic object but a space that integrates the residents of Mikulczyce, serving as a venue for meetings, cultural events, and educational activities. In this way, the project revives the significance of the place and strengthens local identity, bridging tradition with the needs of the contemporary community.


Tutor(s)

2025
• Page Hits: 219         • Entry Date: 13 August 2025         • Last Update: 13 August 2025