Next Project

Shed – The Deconstructed Library

Part 1 Project 2025
Minh Hong Vu
University of Melbourne | Australia
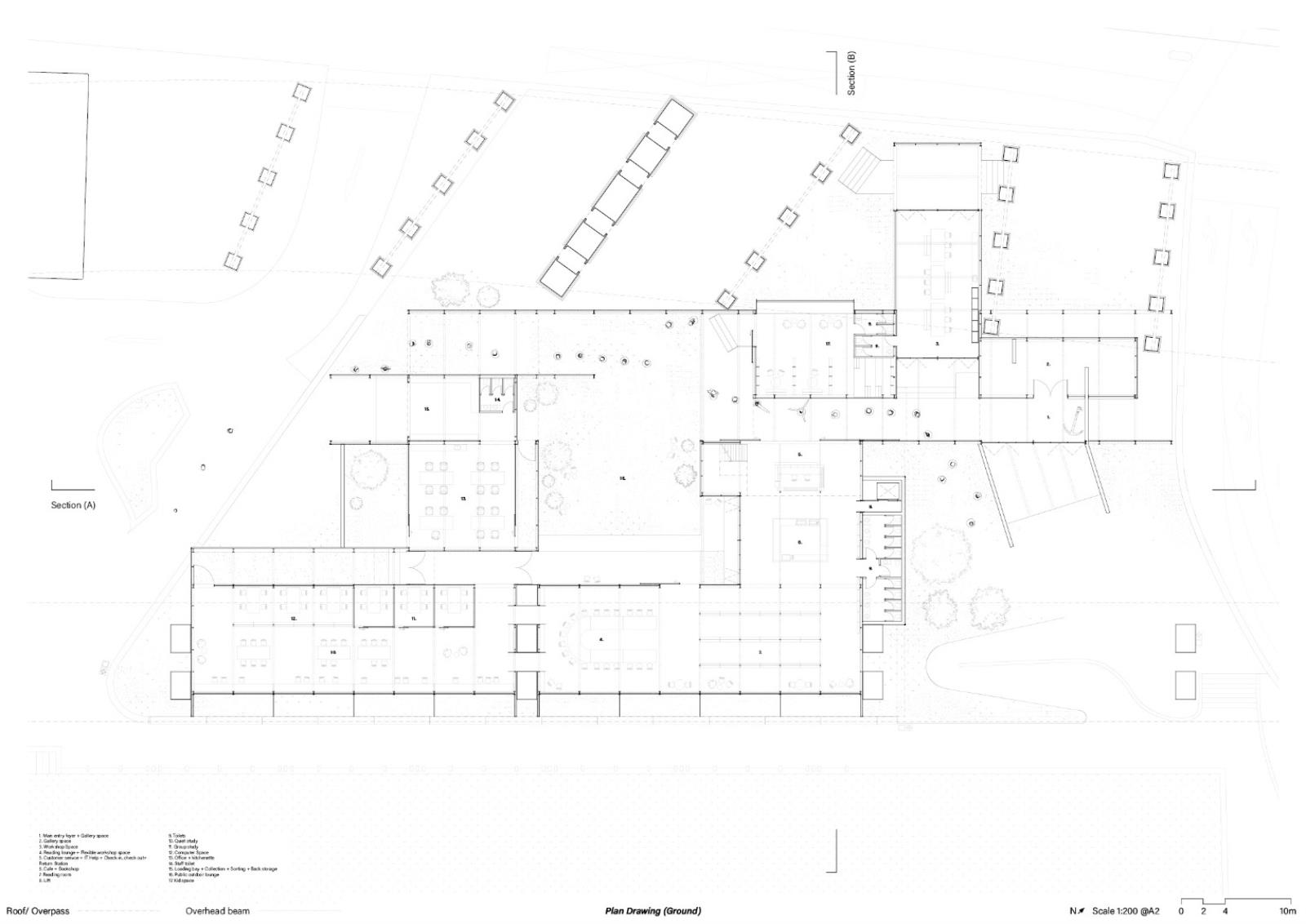
The Shed is a workshop library for the public - aiming to transform the neglected park with noisy train tracks running above that is Enterprize Park and create a third space tucked within the bustling train track. While theoretical knowledge comes from books, or nowadays online, practical skills require hand on experience. The library offers various workshops related to craft for the public as a way to promote the pursuit of creativity and unplug. Thus, exploring what it means to be a contemporary library.

The building footprint is adaptive rather than invasive of the existing site conditions and its open space - utilizing the artifact and overpass support columns to shape and arrange its volume. The Shed chooses raw exposed materials that already existed at Enterpize Park to bring harmony and cohesion between the library and the site.

This library, while can be calming due to the framed courtyards and the body of water, the liveliness of workshops and chatters may reduce the rumbling growl of the train to a background tune of mechanical and rhythmic noises.
A library for gatherings. A library for workshops. A library of steel. A library of courtyards. A library of experiences. A third space.


Tutor(s)

2025
• Page Hits: 344         • Entry Date: 10 August 2025         • Last Update: 10 August 2025