Next Project

Work, Live, Play at Lifford

Part 1 Project 2025
Renia Downes
Birmingham City University | UK
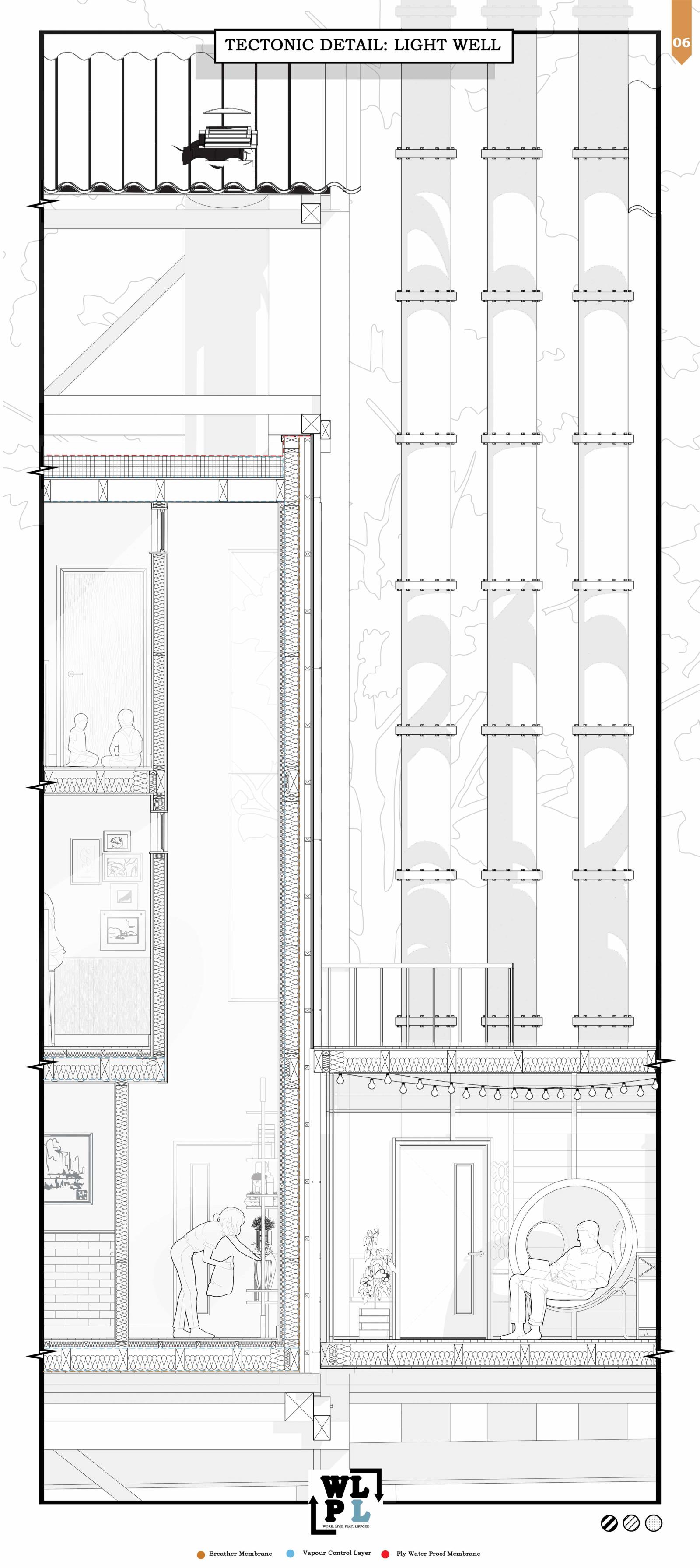
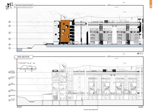
As funding collapsed across Birmingham, so did many of the quiet systems that once made neighbourhoods feel safe and alive. Cuts to housing, infrastructure, and waste services left streets emptier, less visible, and less cared for, undermining the informal watchfulness that used to define public life. Lifford is one of those places, a site of industrial memory now overwhelmed by fly-tipping and disuse. This project does not erase that history. Instead, it layers over it with care, allowing past, present, and future to coexist. Work, recreation, and movement return to the site, alongside strategies to address its current issues. At WLPL, we do not just offer housing. We offer community. A network of shared spaces, walkable links, and interwoven nodes encourages relationships to grow. Residents recycle together, attend workshops at the centre, picnic near the reservoir, and grow food in the shared greenhouse.

The recycling centre is an economic and
symbolic engine, turning waste into value. Nearby, permanent watch pods provide natural surveillance and anchor presence on a site long overlooked.

This is not just about providing homes. It is about rebuilding trust in space, people, and shared responsibility. WLPL is a story of repair, told through timber and time.


Tutor(s)
Oliver Chapman
Max Karlsson Wisotsky
2025
• Page Hits: 1013         • Entry Date: 05 August 2025         • Last Update: 05 August 2025