Next Project

Challenging the Demolition Default – Reimagining Frognerhjemmet

Part 2 Project 2025
Anniken Maria Blakstvedt Willmann
Oslo School of Architecture and Design Oslo | Norway
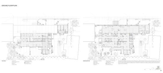
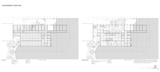
“Challenging the Demolition Default – Reimagining Frognerhjemmet” questions why demolition remains the norm in an age of climate crisis and resource scarcity. Using the case of Frognerhjemmet – a former care home in Oslo demolished in 2024 – the project explores systemic conditions that continue to favour demolition over reuse, even when reuse may be viable.

By tracing the decision-making behind the demolition, the project identifies four key arguments used to justify it. Each is examined through counterarguments and design responses, revealing flaws in how existing buildings are assessed.

The design proposal addresses the same challenges cited to support demolition, using them as starting points for transformation. It shows that alternative solutions are often possible – if actively sought. Although the building is gone, the reimagining acts as a tool to visualise lost potential, provoke reflection, and propose new directions.

The project calls for systemic change to embed sustainability in practice. It advocates legal protection for non-listed buildings, more flexible regulations, economic incentives for reuse, and stronger interdisciplinary collaboration. Ultimately, it promotes a cultural shift – from treating ageing buildings as disposable to seeing them as valuable, adaptable resources.


Tutor(s)
Dagur Eggertsson
2025
• Page Hits: 964         • Entry Date: 14 August 2025         • Last Update: 14 August 2025