Next Project

Concrete Resistance: Staying, Adapting, and Belonging - A Re-imagined Counterproposal for Tower Blocks in Northern Ireland

Part 2 Project 2025
Ryan McCracken
Queen's University Belfast | UK
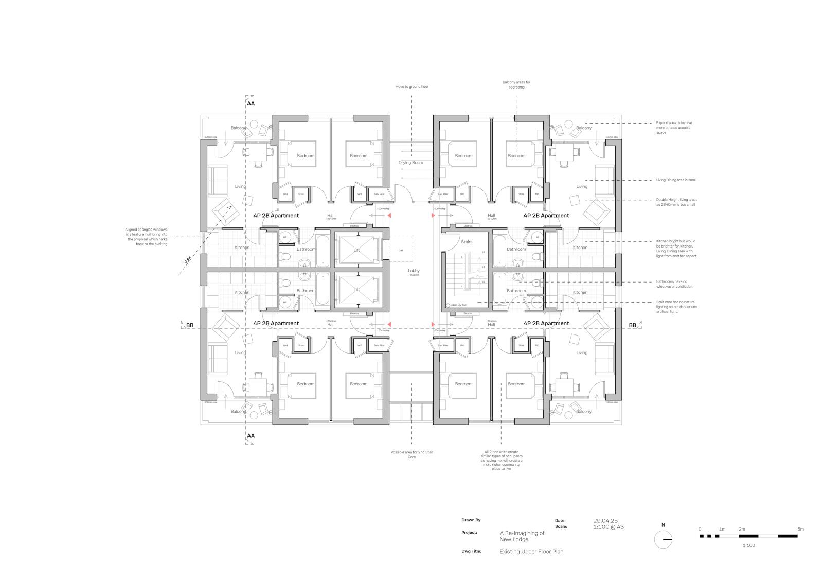
This thesis challenges the assumption that Belfast's New Lodge tower blocks are obsolete and destined for demolition. In the face of a climate emergency and housing crisis, Concrete Resistance explores how adaptive reuse can offer an alternative future, one that values existing structures, social continuity and environmental responsibility.

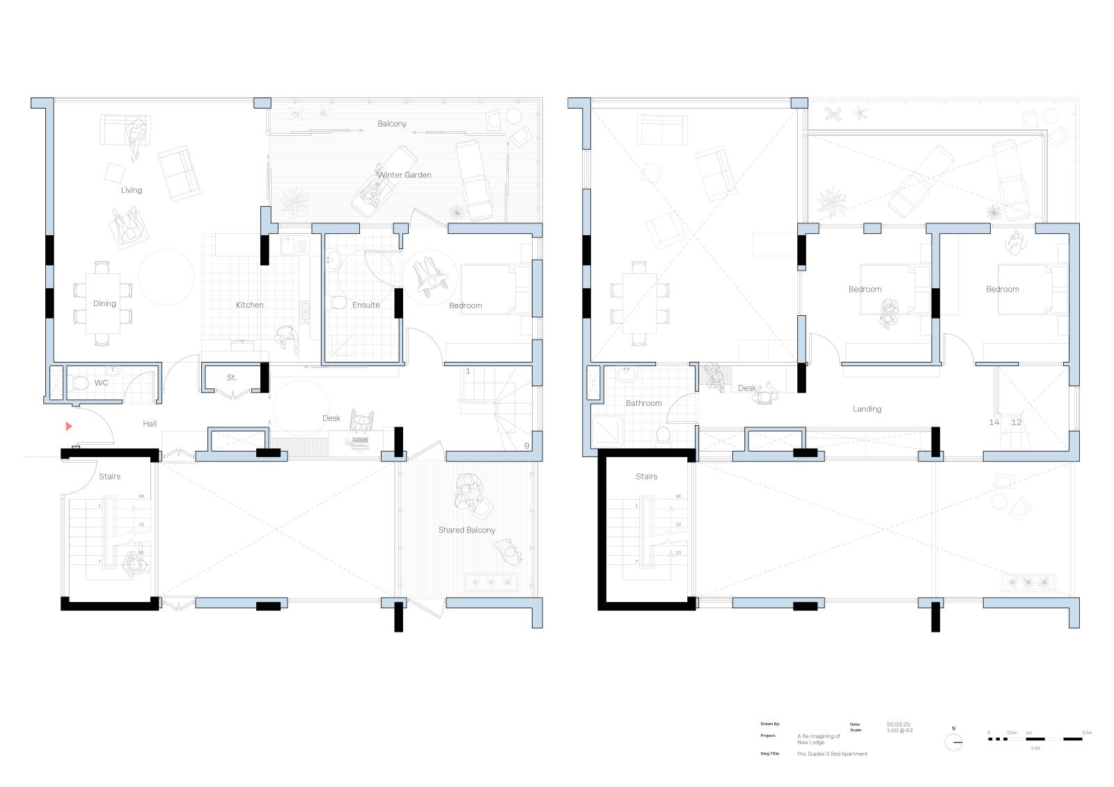
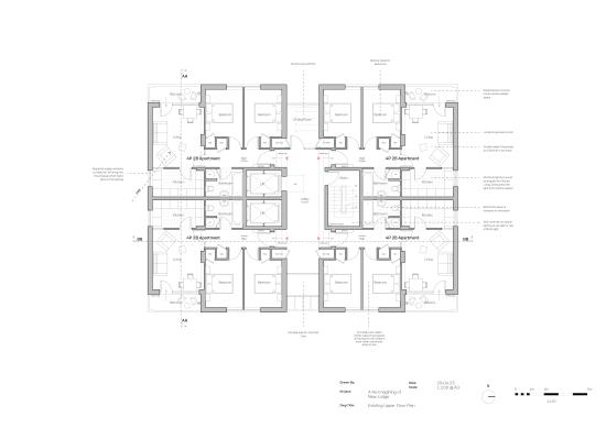
Grounded in ethnographic research, policy analysis and precedent studies, the project proposes a retrofit strategy that retains the towers' concrete cores while adding a new exoskeleton of lightweight steel. This enhances thermal performance, expands living space and introduces generous winter gardens and double-height apartments while restoring dignity and joy to everyday living.

More than a technical solution, the proposal acts as a form of architectural care through one that keeps communities rooted while revitalising buildings once dismissed as failures. A new public realm connects the towers to the wider city, transforming isolation into civic pride.

This project argues that architecture must not only innovate but listen, repair and preserve. It calls on us to see the value in what already exists and to imagine a future built not by erasure, but by empathy.


Tutor(s)
Tarla MacGabhann
Agustina Martire
2025
• Page Hits: 794         • Entry Date: 15 August 2025         • Last Update: 24 September 2025