Next Project

Translating Fine Art into Architectural Language

Part 1 Project 2025
Jake Wright
Arts University Bournemouth | UK
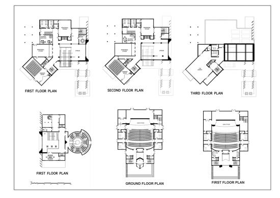
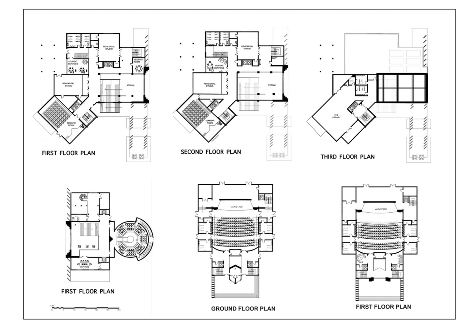
My third-year manifesto adopted the concept of translating fine art into a design strategy that shifts its tone across three terms – fused within the projects structure. Each painting introduced a new motif, clarity and critical reflection towards my scheme, shaping its design.

In Term 1, I drew inspiration from Creation of Adam to conceptualise spatial disconnection through Bournemouth’s urban context. Framing the idea of disconnection of the fragmented landscape through layering the painting on top, revealing cracks of Bournemouth’s context.

Term 2 reversed this process, focusing on Raphael’s “The School of Athens”. Using the compositions, counterbalances and spatial layout of the painting I began to translate them into architectural principles for my project. The Theatrical spread of characters influenced the University scheme being one of theatre.

Term 3 focused inwards to the soul of the project. Using Michealangelo’s “The Last Judgement” as a reflection of the projects design, interior and exterior spaces, and a time for me to reflect creatively. The drawing mirrored the philosophy of Michelangelo’s reflection towards his faith, expressed architecturally.


Tutor(s)
Simon Newell
2025
• Page Hits: 592         • Entry Date: 15 August 2025         • Last Update: 15 August 2025