Next Project

Youth Art Club

Part 2 Project 2025
Tahli Hogberg
University of Melbourne | Australia
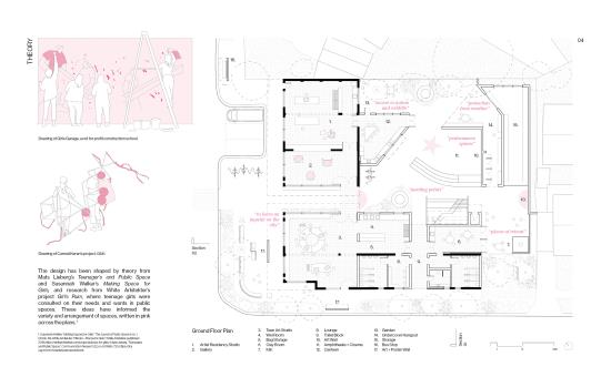
Youth Art Club is a public art studio for teenagers, responding to the exclusion of teenage girls from existing public spaces, such as skate parks and sports fields, dominated by boys. This project offers an arts-based alternative to the existing sports infrastructure available to teens in the suburbs.

Located in Deer Park, a disadvantaged suburb of Melbourne, the design repurposes a vacant block of corner shops into a civic space for teenagers to gather, make art, and take ownership.

Informed by research from Susannah Walker, White Arkitekter and Mats Lieberg, the project foregrounds the everyday experiences of teenage girls, and their desire for creativity, agency and safety. Functional art studios are supported by informal “haunts and hangouts” for loitering, dreaming, and play.

The Youth Art Club challenges the existing narrative of teenage presence in public space, recognising it as a place where teenagers grow up, not as disruptive outsiders, but as contributors to the creative and social life of the street.


Tutor(s)
Emilio Fuscaldo
2025
• Page Hits: 835         • Entry Date: 20 August 2025         • Last Update: 20 August 2025